Active
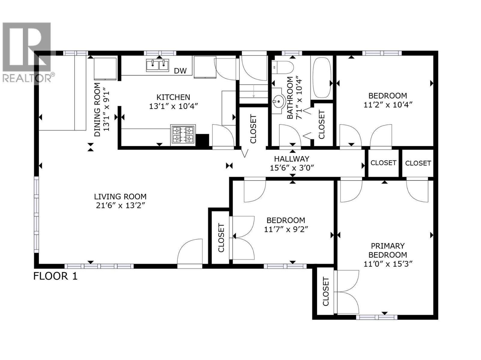
Welcome to 470 Snowsell Street, a well-maintained single-family home nestled in the highly sought-after North Glenmore neighbourhood of Kelowna. The main level is filled with natural light and offers a functional layout featuring 3 bedrooms, 1 full bathroom, a spacious living room, and a dedicated dining area—perfect for comfortable family living. Downstairs, you’ll find a 2-bedroom, 1-bath basement suite with its own private entrance and shared laundry, providing excellent mortgage-helper or investment potential. Outside, the property offers a generous driveway with ample parking for multiple vehicles and recreational toys. Ideally located within walking distance to North Glenmore Elementary and Dr. Knox Middle School, and close to transit, shopping, and everyday amenities. Enjoy the convenience of being just minutes to Downtown Kelowna, UBCO, and Kelowna International Airport. This is a fantastic opportunity to own in one of Kelowna’s most desirable family-friendly neighbourhoods. (id:43014)

